首 页 > 产业布局 > 地产开发
Real estate
长春莲花山生态旅游度假区龙双公路与莲花山大路交会南行 400 米
联系电话:0431-89206666
现场优惠
99折
楼盘参数
开盘时间:2019年10月10日
物业类型:合院、联排、3F叠墅、4F叠拼、6-8F叠拼、洋房
建筑类型:洋房、别墅
总户数:住宅1058套
车位数:1124
容积率:1.09
绿化率:39%
装修情况:精装、毛坯
开发商:吉林省力旺精成房地产开发有限公司
物业公司:吉林省力旺智慧生活物业服务有限公司
物业费:洋房、6F以上叠拼:3.3元/㎡/月(首层免收电梯费0.4元/㎡/月)
3F叠墅、4F叠拼:4.1元/㎡/月 (首层免收电梯费0.7元/㎡/月)
联排、合院别墅:4.9元/㎡/月
商业:4元/㎡/月
洋房区地上车库:1.45元/㎡/月
叠拼区地上车库:1.7/㎡/月
项目介绍
力旺·孔雀林项目坐落于长春莲花山生态旅游度假区核心地段,毗邻龙双公路与莲花山大路,依托莲花山板块生态优势打造。项目距主城核心区仅 30 分钟车程。
项目总占地约60万㎡,其中有32万㎡原生态林地,负氧离子含量相对较高,建筑面积27.5万㎡,共计分四期开发, 其中1.1期总建面约72998㎡,1.2期总建面约4万㎡,2.1期总建面约9.5万㎡,2.2期(H1)总建面约4.4万㎡,项目整体容积率仅 1.09,绿化率39%,属低密森林山居社区。
项目依托与莲花山 “山林、生态、温泉、一河两岸” 四大资源优势,规划联排、叠拼、合院、洋房等多元产品,面积区间在83㎡-270㎡。实现 “与山共生” 的纯粹舒适山居体验。
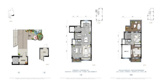
在售户型
1、合院:面积为230㎡、255㎡、285㎡、316㎡的合院产品,每套总价在290万起,均价为12000-13000元/㎡;
2、4F叠拼产品:面积为125㎡、140㎡、202㎡的叠拼产品,均价8500-12000元/㎡;
3、精装洋房:面积为80㎡、100㎡、115㎡的精装洋房产品,价格区间8000-9300元/㎡
楼盘卖点
项目以 “自然共生” 理念打造首座森林山居生活美学度假地,以 “山居情怀 + 森氧体验 + 生活哲学” 开启长春山居时代。
1、生态资源
项目位于 32 万平原生态林地之内,负氧离子含量常年保持在每立方厘米 3000 个以上(相当于城市中心 3-4 倍)。项目东侧蒋家河支流经生态治理后形成千米河岸景观带,沿岸分布欢乐海岸沙滩、休闲凉亭、湿地景观,四季皆有诗意。
2、山居生活
项目规划建设一条3千米的环山栈道,由1.2千米的木栈道和1.8千米的沥青跑道组成,沿着环山栈道走进32万方山里,沿途设半山茶社、孔雀广场、揽峰塔、森氧瑜伽台、休憩亭,可徒步感受森林疗愈。漫步中央溪谷,识别 20 余种原生植物,探秘湿地生态,亲近大自然,实现身心放松。
3、亲子天地
在尊重原始地势地貌的前提下,园区内精心打造了撒野公园,有秋千、攀爬架、跷跷板等娱乐设施,通过互动游戏,让孩子与家长在自然环境中放下手机,建立深度沟通,感受大自然的美好。
4、温泉酒店
为了能带来更好的山居体验,力旺斥资两个亿获得莲花山温泉独家开发使用权。酒店占地面积约2.4万平方米,总建筑面积约3.8万平方米,规划温泉酒店、别墅酒店、森林客房三大类别,温泉酒店功能涵盖宴会厅、酒吧、餐厅、茶室、水疗室、温泉大厅、多种功能的泡池、多角度观景温泉客房等,别墅酒店独未来在孔雀林您可以享受到冰天雪地里的温泉体验。